Property Marketing Services

Floor Plans

The Importance of Floor Plans in the UK Property Market: Enhancing Buyer Experience with Accurate 2D and 3D Floor Plans

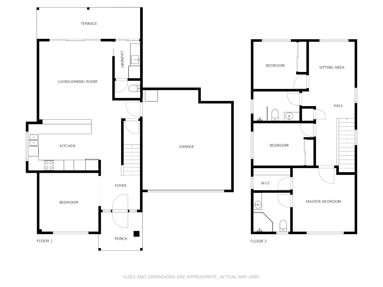
In a competitive UK property market, floor plans have become a crucial tool for showcasing properties effectively. Whether for residential or commercial listings, buyers and renters alike rely on floor plans to visualise a property’s layout, flow, and potential. With the rise of online property searching, providing clear and detailed floor plans has become essential in helping prospective clients make informed decisions before committing to a viewing. At Phantom, we offer both 2D and 3D floor plans, using the latest in Lidar technology to ensure precise and accurate representations of properties. With our fast turnaround times, we help streamline the buying process and enhance property marketing efforts.

The Role of Floor Plans in Property Marketing

Floor plans are more than just a supplementary tool they are a key element in providing potential buyers and renters with a clear understanding of how a property is laid out. Traditional photos and videos offer a visual experience, but they don’t always convey the size, dimensions, and spatial relationships between rooms. This is where floor plans come into play. They allow buyers to visualise the flow of the property, giving them a better sense of how the space can fit their needs.

For example, a family looking for a new home will want to know how the bedrooms are positioned in relation to the living spaces or whether the kitchen layout suits their lifestyle. Similarly, a business seeking office space will want to assess the layout for practicality, such as where meeting rooms, break areas, and open office spaces are located. With Phantom’s detailed 2D and 3D floor plans, potential buyers can make these evaluations quickly and accurately, helping them narrow down their options and focus on properties that truly meet their needs.

Phantom’s Use of Lidar Technology for Accuracy

At Phantom, we take property measurement to the next level with the use of Lidar technology (Light Detection and Ranging). Lidar is an advanced laser scanning technology that provides exceptionally precise measurements of interior and exterior spaces. This allows us to create floor plans that are highly accurate, offering potential buyers a realistic view of the property’s dimensions and structure.
The benefit of using Lidar in property scanning is that it captures millions of data points, resulting in extremely detailed and accurate floor plans. This level of precision is especially important for large or complex properties, where accurate measurements are essential for proper planning and decision making. Whether it’s a residential home, commercial office space, or industrial warehouse, our Lidar technology ensures that every nook and cranny of the property is measured correctly and represented in both 2D and 3D formats.

The Benefits of 2D and 3D Floor Plans

Both 2D and 3D floor plans offer unique advantages when it comes to property marketing and buyer decision making:

  • 2D Floor Plans: These are the traditional overhead views that outline the layout of a property, showing room dimensions, door and window placement, and the relationships between different areas. 2D plans are simple, clear, and easy to read, providing potential buyers with a straightforward understanding of the property’s layout. They are particularly useful for inclusion in brochures, online listings, and print materials.
  • 3D Floor Plans: These offer a more immersive experience, providing a three dimensional view of the property that helps buyers better understand the space. 3D floor plans allow buyers to visualise the height and depth of rooms, as well as get a sense of the property’s flow and interior design potential. This is particularly helpful for buyers who may have difficulty imagining the space based on 2D plans alone. For larger properties or new developments, 3D floor plans can give prospective buyers a more engaging and realistic experience, making it easier to visualise the property as their future home or workspace.

Fast Turnaround Times for Efficiency

In the property market, timing is everything. Delays in providing essential marketing materials such as floor plans can slow down the sales or rental process, potentially leading to lost opportunities. At Phantom, we understand the importance of speed and efficiency in property marketing, which is why we offer fast turnaround times for our floor plan services. Whether it’s a single-family home, a large commercial building, or a mixed-use development, we work quickly to capture the data, process the information, and deliver high-quality 2D and 3D floor plans in a timely manner.

Our quick turnaround ensures that estate agents, property developers, and landlords can get their properties listed faster, giving them a competitive edge in the marketplace. By providing accurate and detailed floor plans swiftly, we help our clients attract more serious buyers or tenants from the outset, reducing the time properties spend on the market.

Improving Buyer Decision-Making

One of the key benefits of offering floor plans is that they allow potential buyers to make more informed decisions before scheduling a viewing. By providing detailed 2D or 3D representations of the property’s layout, buyers can better assess whether the property suits their needs and preferences. This helps to pre-qualify interested parties, reducing the number of unnecessary viewings and ensuring that only serious buyers or tenants are engaged.

For estate agents, this can lead to more efficient use of time, as they can focus on showing properties to qualified prospects who have already visualised the layout and are more likely to make a decision. For buyers and renters, it means they can spend less time visiting properties that don’t meet their criteria, streamlining their search and leading to a faster, more satisfying purchase or rental process.

Why Choose Phantom for Floor Plans?

At Phantom, we combine the latest in Lidar technology with expert knowledge in property marketing to deliver accurate, detailed floor plans that enhance your listings. Our 2D and 3D floor plans are created with precision, ensuring that buyers have a clear understanding of a property’s layout and flow. With fast turnaround times, we help you get your properties to market quickly and efficiently, giving you an edge in today’s competitive market.

By choosing Phantom, you’re choosing a team that’s dedicated to delivering high-quality, reliable floor plans that improve buyer decision-making and streamline the property marketing process. Whether you’re selling a family home, leasing office space, or showcasing a new development, our floor plans give your potential clients the information they need to make informed choices.

Reach out to us today to learn more about how Phantom’s floor plans can enhance your property marketing efforts in the UK and Ireland!

Let’s Work Together!

Partner with Phantom, Northern Ireland’s leading property marketing agency.

Estate Agents Photographers & Videographers